HOME

OFFER

ABOUT

PROJECTS

CONTACT

© Designed by Grzegorz Jandala 2019,  All rights reserved.

Software:

Gazebo          in the classic  style

The project of a recreational gazebo, presents detailed technical documentation, with the description of individual architectural elements based on the knowledge gained at the University of Agriculture and own work. To design a gazebo I used software such as: Sketchup, AutoCAD.

K

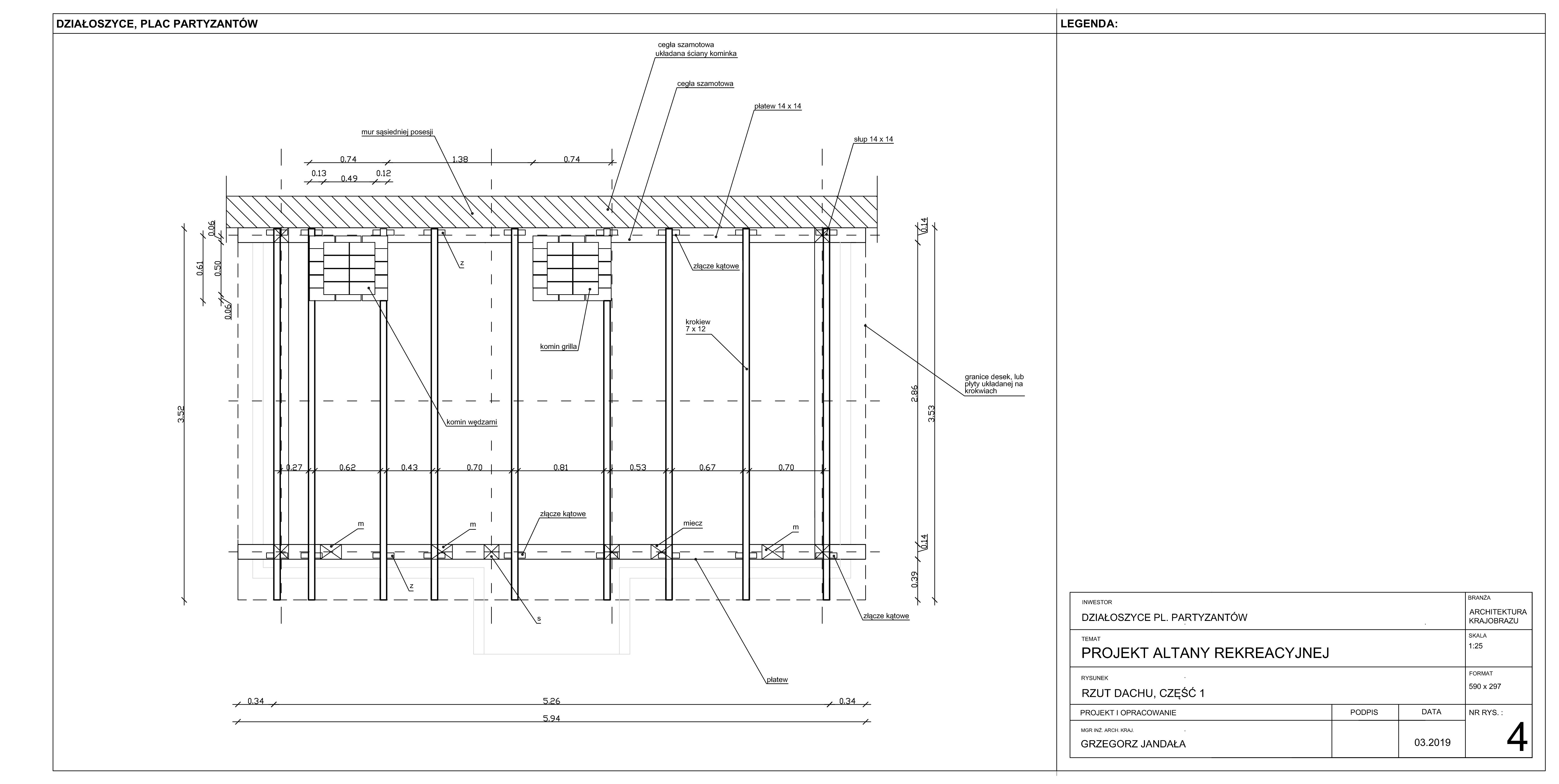
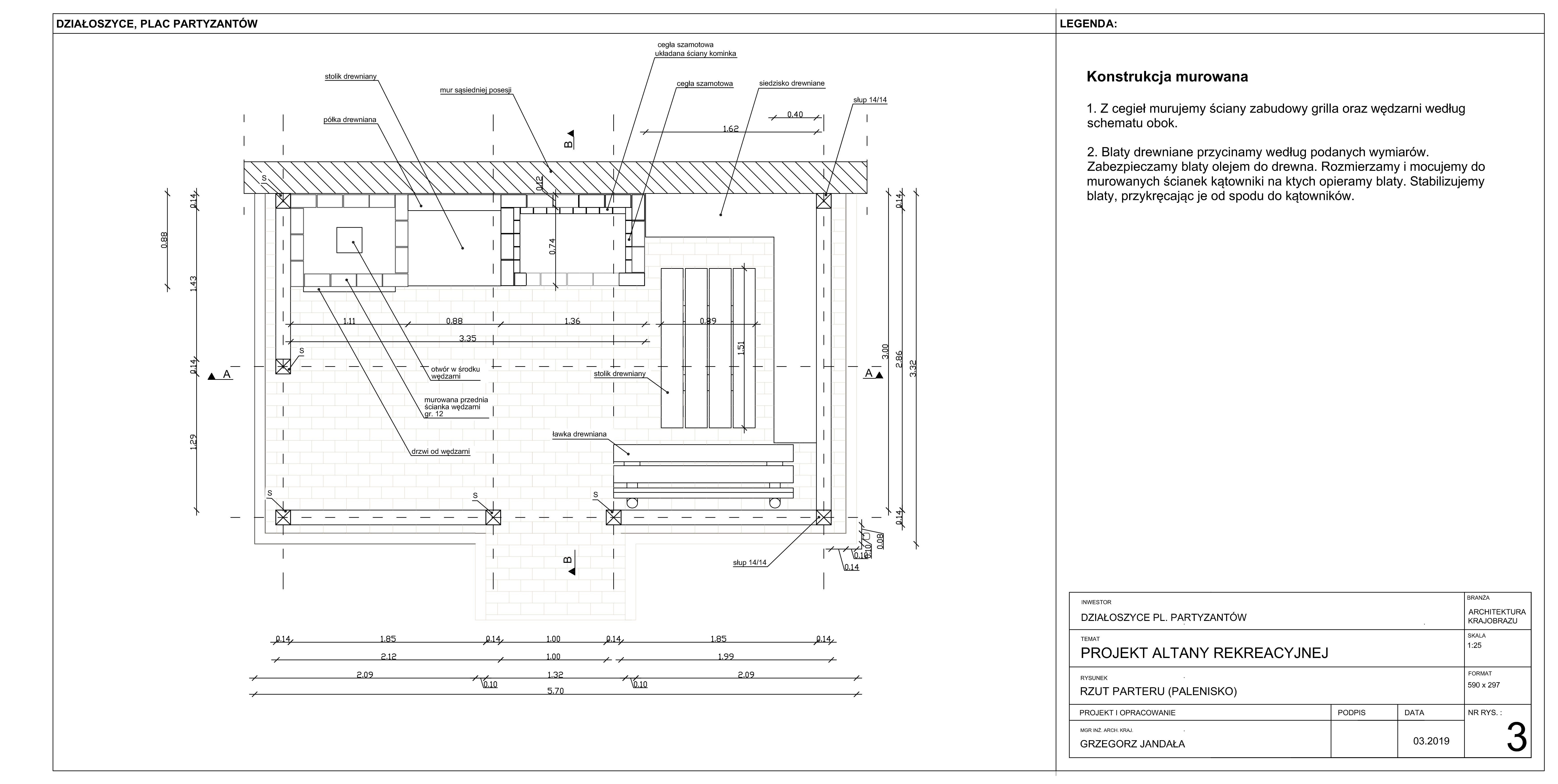
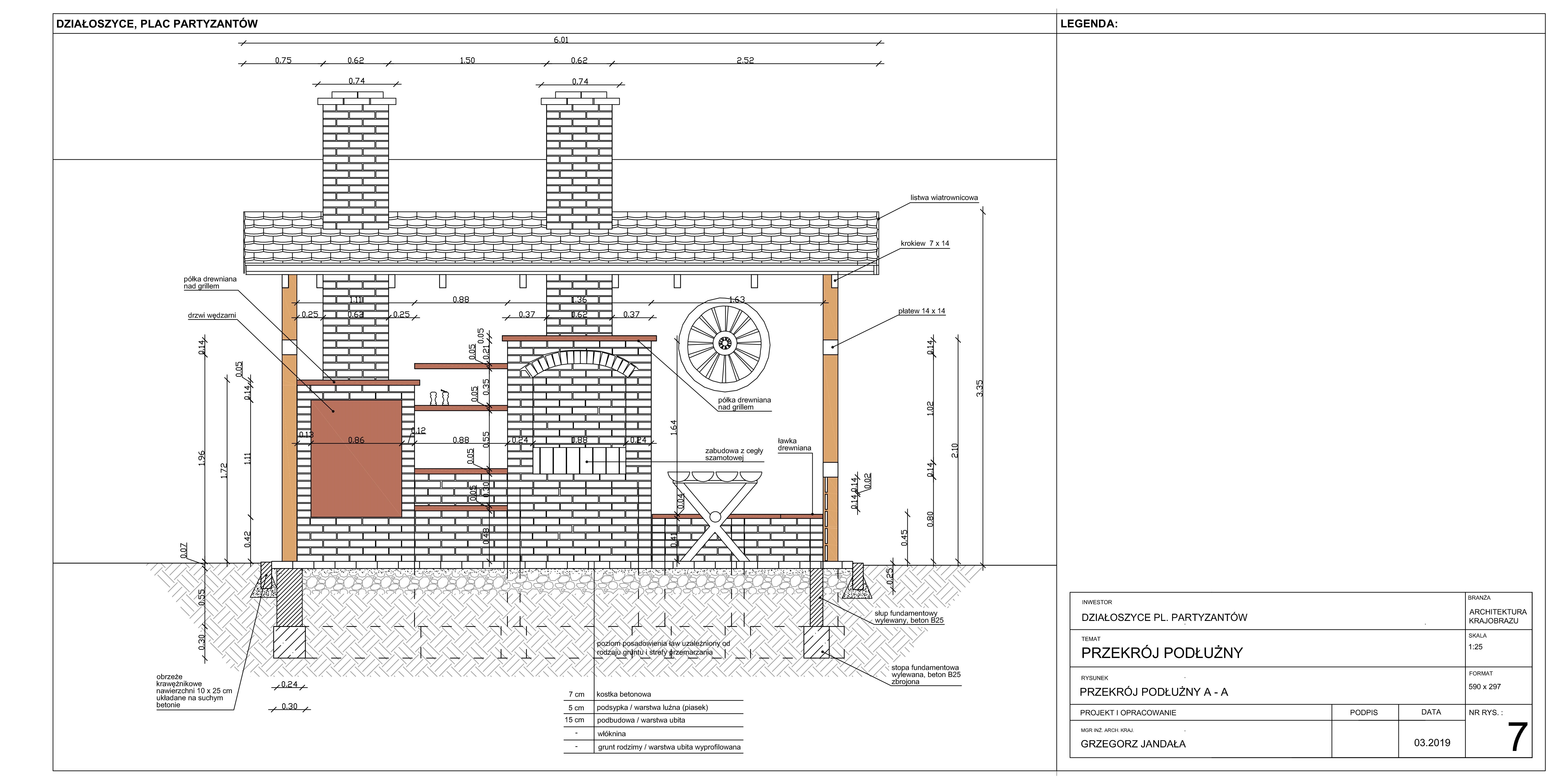
The wooden construction adheres to the façade of the neighboring building, made of pine wood. In the middle of the gazebo there is a grill, a smokehouse and a corner with a large table. Next to the grill there is a table for preparing dishes. In the gazebo, you can also attach the blinds and install the removable door, thanks to which in the autumn and winter it will be warmer there.

P

PROJECTIONS AND ELEVATIONS